Baugebiet "Schafbuckel II" in Untereisesheim
Baugebiet "Schafbuckel II" in Untereisesheim
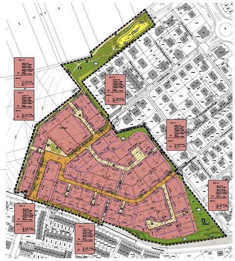
In Untereisesheim erschließen wir auf einer Fläche von ca. 4 ha das Wohngebiet "Schafbuckel II". Es entstehen 51 neue Bauplätze, davon ein Großteil für Individualwohnungsbau in Einfamilien- und Doppelhäusern, 5 für Geschoßwohnungsbau und ein Bauplatz für eine besondere Wohnform.
Veröffentlicht am 07.10.2019
Nun drücken wir den Baufirmen Naumann und Reimold die Daumen für einen guten und vor allem unfallfreien Bauverlauf!
Veröffentlicht am 07.08.2019
Zu beauftragen waren die Grabungen infolge einer Prospektion (Suche nach vermuteten Denkmälern), die im Frühjahr durchgeführt und bei der Siedlungsreste gefunden wurden, die in die Urnenfelderzeit (1300 – 800 v. Chr.) datiert werden konnten.
Veröffentlicht am 15.07.2019
Der Bebauungsplan "Schafbuckel II" ist mittlerweile rechtskräftig. Sie können die Festsetzungen auf der Homepage der Gemeinde Untereisesheim einsehen und herunterladen.

Mitte Juni 2023 haben die Erschließungsarbeiten zum Baugebiet „Neufeld Ost“ begonnen. Das Neubaugebiet liegt am südöstlichen Ortsrand des Ortsteils Grauelsbaum. Auf der zu überplanenden Bruttobaulandfläche von 1,2 ha bzw. der Nettobaulandfläche von 1,0 ha werden 21 Bauplätze zur Bebauung mit bis zu 3 Wohneinheiten je Grundstück entstehen. Die Bauzeit der Erschließungsarbeiten ist mit knapp einem Jahr veranschlagt und planmäßig soll ab Juli 2024 mit dem Hochbau begonnen werden können.

Das Baugebiet ist ca. 2 ha groß und es entstehen 23 Baugrundstücke, darunter eines für Geschoßwohnungsbau und eines zur Bebauung mit mehreren Gebäuden durch einen Bauträger. Im Juli wurde mit den Bauarbeiten begonnen und Mitte 2024 soll die Erschließungsanlage hergestellt sein. Insgesamt kostet die Erschließung ca. 4,2 Mio. €. Pro qm Bauplatzfläche sind ca. 280,- €/qm kalkuliert.

Am Donnerstag, 6. Juni 2023 fand der Spatenstich zum Beginn der Erschließungsarbeiten Baugebiet „Eulenschnabel“ statt. Das Neubaugebiet bildet die Fortführung des vormals erschlossenen Baugebiets „Im Dieterstal“. Auf der zu überplanenden Bruttobaulandfläche von 2,4 ha bzw. der Nettobaulandfläche von 1,6 ha werden 33 Bauplätze zur Einzelhausbebauung entstehen. Die Bauzeit der Erschließungsarbeiten ist mit knapp einem Jahr veranschlagt und planmäßig soll ab Juli 2024 mit dem Hochbau begonnen werden können.

Am Freitag, 8. September fand der Spatenstich zum Beginn der Erschließungsarbeiten Baugebiet „Bühli“ statt. Mit den Vorbereitungen zur Umsetzung des Baugebiets sind wir seit 2010 beschäftigt. Auf der zu überplanenden Bruttobaulandfläche von 6,28 ha bzw. der Nettobaulandfläche von 3,9 ha werden 65 Bauplätze entstehen. Die Bauzeit der umfangreichen Erschließungsarbeiten ist mit knapp 21 Monaten veranschlagt und planmäßig sollen ab Mitte Mai 2025 die Hochbaufreigaben erteilt werden können.

Neuffen, Eberhardtstraße In Neuffen fand dieser Tage der Baubeginn zu einem kleinem aber feinen Baugebiet nahe der Ortsmitte statt. Auf einem Areal von ca. 37 ar werden ca. 15 neue Bauplätze für Einzel- und Doppelhäuser entstehen. Die Entwicklung ist mit etwas mehr als einer halben Million Euro veranschlagt, was umgerechnet ca. 165€/qm ausmacht, die von den Bauplatzeigentümern direkt getragen werden. In kleiner Runde konnte Bürgermeister Matthias Bäcker am 26. März 2021 bei strahlendem Sonnenschein den ersten „Symbolischen Baggerbiss“ setzen. Bereits im Laufe des Juni diesen Jahres kann mit der Fertigstellung der Erschließungsarbeiten gerechnet werden.








